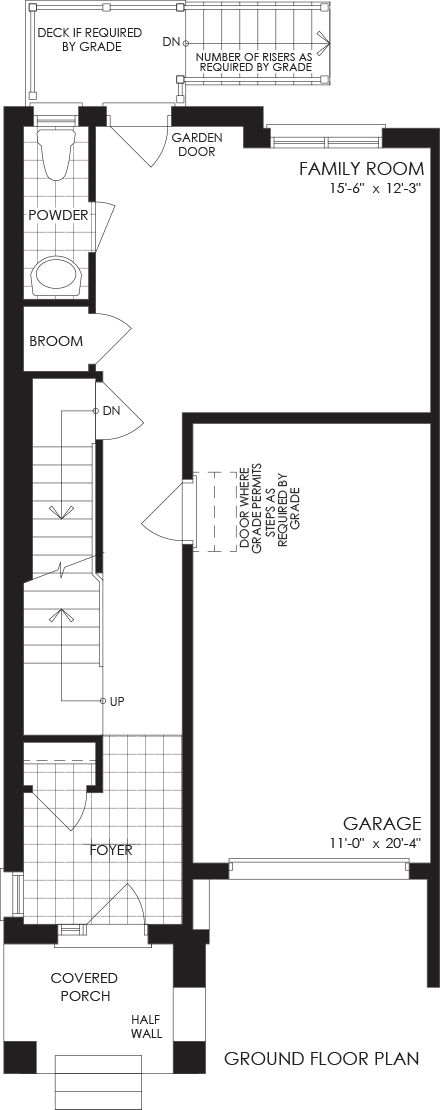
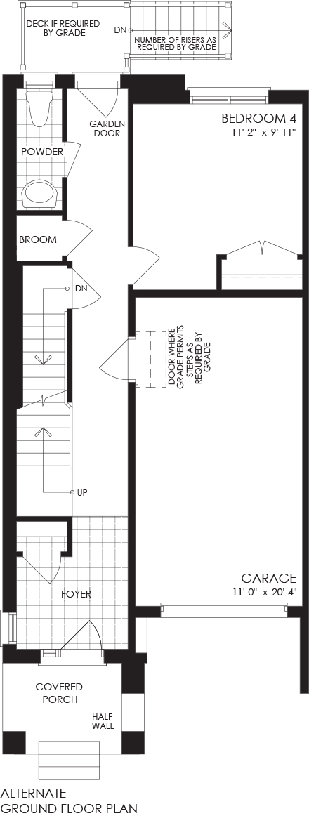
The Brook 3
2026/2384 sq.ft. (A1 Front, A1 Rear) | 2001/2359 sq.ft. (A2 Front, A1 Rear)
2036/2394 sq.ft. (A1 Front, A2 Rear) | 2011/2369 sq.ft. (A2 Front, A2 Rear)

Brook 3 (End)
ELEVATION A
Ground Floor
Main Floor
Upper Floor
Ground Floor (Alt)
Upper Floor (Alternate)
Basement
Basement (Opt. Finished)