The Brook 1
1846/2192 sq.ft. (A1 Front, A2 Rear) | 1809/2156 sq.ft. (A3 Front, A1 Rear)
1821/2168 sq.ft. (A2 Front, A2 Rear) | 1821/2168 sq.ft. (A3 Front, A2 Rear)

Brook 2
ELEVATION A1
Brook 2
ELEVATION A3
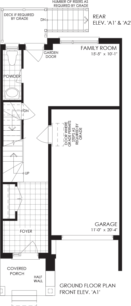
Ground Floor
Main Floor
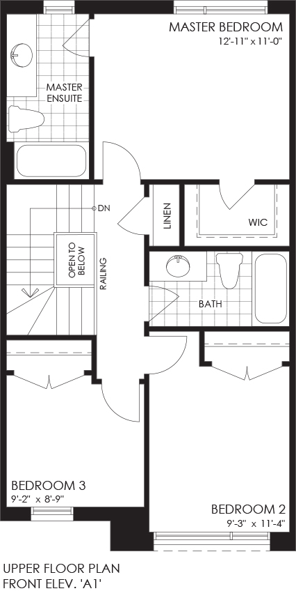
Upper Floor
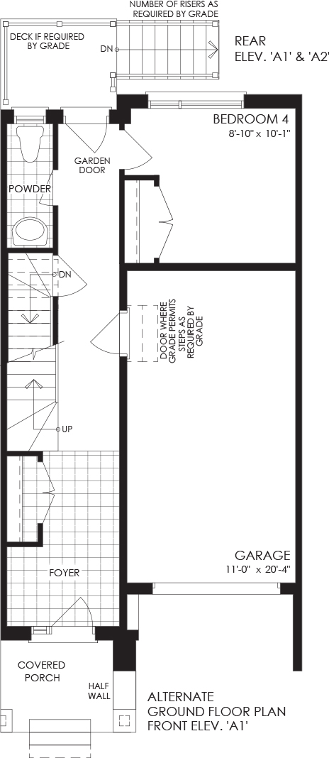
Ground Floor (Alt)
Main Floor (Alternate)
Upper Floor (Alternate)
Basement
Basement (Opt. Finished)